Преимущества
- Высокая степень очистки стоков, соответствующая всем Российским нормативам по очищенной сточной воде, что позволяет отводить очищенные сточные воды из станции Топас 5 непосредственно на рельеф и в водные объекты.
- Станции работают автономно. Режимы работы регулируются автоматически в соответствии с объемом поступающих стоков. Септики Топас 5 работают без снижения качества очистки в зимних российских условиях.
- Нет необходимости вызывать ассенизационную технику, что избавляет от необходимости монтировать очистные сооружения вблизи от подъездных дорог.
- Внешний вид надземной части септика не портит существующий ландшафт – надземная часть комплектуется крышкой под цвет газона.
- Отсутствие дурных запахов позволяет устанавливать системы вблизи зданий, а при необходимости даже в подвалах помещений.
- Корпус Топас 5 обладает полной герметичностью и высокой механической прочностью. Установка очень долговечна, т.к. корпус выполнен из полипропилена, который не подвержен коррозии.
- Оптимальные габаритные размеры станции Топас 5, наличие ребер жесткости и малый вес обеспечивают удобство транспортировки и монтажа без бетонирования и привлечения спецтехники.
- Экологическая безопасность. Очистные сооружения не выделяют вредных выбросов в атмосферу.
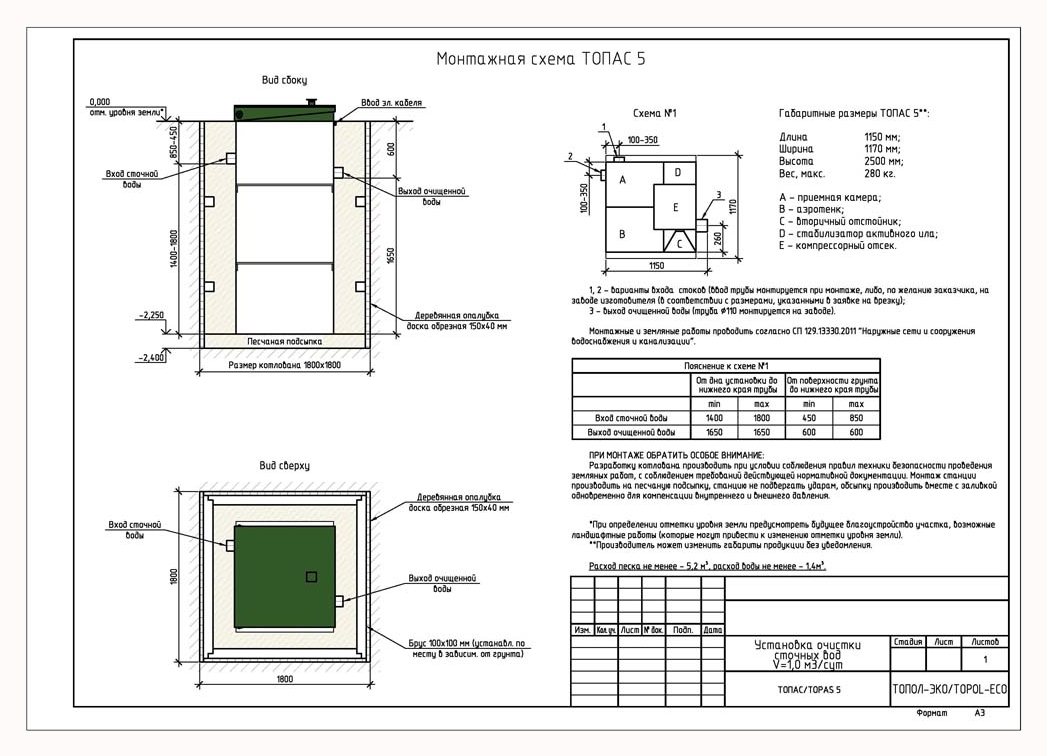
Внутреннее устройство септика
Наименование отсеков септика Топас 5:
А. Приемная камера
Б. Аэротенк
В. Вторичный отстойник
Г. Стабилизатор активного ила
Элементы Топас 5
1. Ввод стоков
2. Фильтр грубой очистки
3. Главный насос
4. Насос откачки ила
5. Насос аэротенка
6. Компрессоры
7. Устройства сбора неперерабатываемых частиц
8. Вывод очищенной воды
9. Поплавковый датчик
10. Распаячная коробка для подключения подводящего электрокабеля
11. Кнопка включения и выключения
12. Блок управления
13. Фильтр плавающих веществ (фильтр тонкой очистки)
14. Электромагнитный клапан
15. Аэраторы
16. Успокоитель вторичного отстойника
17. Циркуляционный насос









